RCAD Acquire

使用手冊

設定版配筋

功能與適用時機

將專案的版配筋資訊輸入至EXCEL總表。

操作步驟(Steps)

Step1.  點選EXCEL總表下方表格【inp-06 版配筋】

Step2. 將案件的版配筋資訊輸入到表格裡。

※ 每配筋兩列為一組,分別表示版上下層配筋 (參考補充說明2)

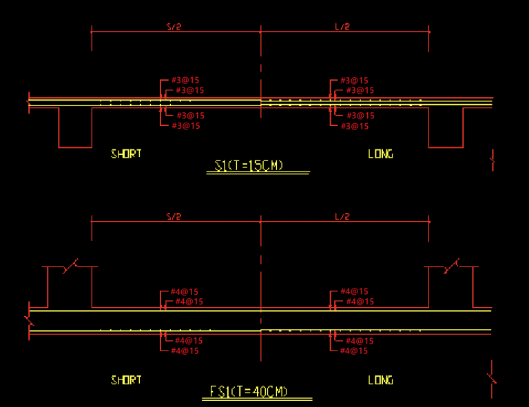
版配筋
範例: 版配筋示意圖

Step2-1. 如有加筋及指定加筋斷點,依序填寫於加筋區與加鐵區。

※ 點擊參考案例說明  加筋&加筋斷點範例

Step3. 輸入完案件的所有資訊後,最後加上 record.end 表示結束,即完成版配筋總表設定。

補充說明

1. 此欄位為程式判讀區,不可更動。

2. 兩列為一組,分別表示上下層配筋

3. 如遇多樓層共用同一配筋,可於【欄位: 樓層】將多個樓層輸入同一格,並以〝 , 〞將樓層分開。

Previous 設定樓層資訊Floors
Next 設定門窗表